OKX-Ⅱ卸料閥系統
概述
庫底卸料裝置由庫底螺旋閥、庫底分料箱、氣動開關閥、電動流量控制閥及卸料溜子組成(見圖一),用于水泥生料粉或水泥庫底卸料。庫底卸料裝置能自動調節卸料流量且均勻,其結構合理,操作維護簡單方便,可設三個下料口,用戶也可選用庫側卸料裝置(見圖二)。
本廠卸料裝置的氣動開關閥(見圖三)、電動流量調節閥(見圖三)是采用德國技術制造,閥芯、殼體采用16Mn鋼制作,閥芯表面鍍鉻,厚度10μm,以增加其耐磨性能,閥芯的密封采用優質整體羊毛氈密封,密封盒的松緊可在外部調節,更換時可在無須拆卸閥體的情況下從雙側抽出,閥芯開口、殼體部件下料均采用激光切割、機床加工的方式制作,充分保證設備裝配的高精密度。
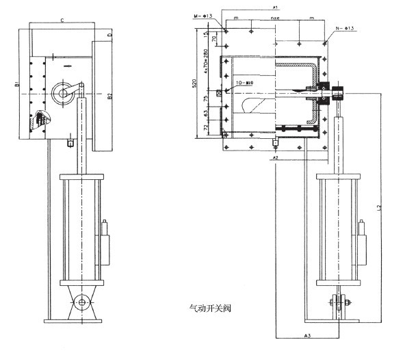
進、出口法蘭及外形尺寸
代號 規格 | A1 | A2 | A3 | m | n x e | M | N | L1 | L |
B250 | 340 | 330 | 235 | 100 | 1 x 100 | 10 | 20 | 345 | 760 |
B300 | 390 | 380 | 260 | 90 | 8 x 85 | 12 | 22 | 370 | 760 |
B400 | 490 | 480 | 330 | 115 | 2 x 110 | 12 | 22 | 420 | 760 |
B500 | 590 | 580 | 380 | 110 | 3 x 110 | 14 | 24 | 470 | 780 |
B630 | 730 | 720 | 455 | 110 | 4 x 115 | 16 | 30 | 540 | 780 |




規格 部件 | B250 | B315 | B400 | B500 | B600 | 備注 | |
氣 動 開 關 閥 | 螺旋閘門 | 250x250 | 315x315 | 400x400 | 500x500 | 630x630 | |
卸料能力 | 150t/h(max) | 220t/h(max) | 410t/h(max) | 550t/h(max) | 700t/h(max) | ||
閥芯開口 | Ω形或三角形 | Ω形或三角形 | Ω形或三角形 | Ω形或三角形 | Ω形或三角形 | 或η形 | |
流通面積 | 0.016m2 | 0.024m2 | 0.04m2 | 0.052m2 | 0.068m2 | ||
充氣風量 | 13.5m3/h | 16m3/h | 21m3/h | 27m3/h | 34m3/h | 壓力<8000pa | |
氣缸 | QGB-100x200-MP4 | QGB-100x200-MP4 | QGB-100x200-MP4 | QGB-125x200-MP4 | QGB-125x200-MP4 | ||
耗氣量12m3/h | 耗氣量12m3/h | 耗氣量12m3/h | 耗氣量17m3/h | 耗氣量17m3/h | 壓力<0.6Mpa | ||
電磁閥KD25-8220V | 電磁閥KD25-8220V | 電磁閥KD25-8220V | 電磁閥KD25-8220V | 電磁閥KD25-8220V | |||
開關時間1-2S | 開關時間1-2S | 開關時間1-2S | 開關時間1-2S | 開關時間1-2S | |||
電 動 流 量 控 制 閥 | 調節范圍 | 0-150t/h(max) | 0-220t/h(max) | 0-410t/h(max) | 0-550t/h(max) | 0-700t/h(max) | |
閥芯開口 | Ω形或三角形 | Ω形或三角形 | Ω形或三角形 | Ω形或三角形 | Ω形或三角形 | 或η形 | |
流通面積 | 0.016m2 | 0.024m2 | 0.04m2 | 0.052m2 | 0.068m2 | 壓力<8000pa | |
充氣風量 | 13.5m3/h | 16m3/h | 21m3/h | 27m3/h | 34m3/h | 或根據要求 | |
電動 執行器 | AS-25 | AS-25 | BS-60 | BS-60 | A+RS100 | ||
輸出力矩250Nm | 輸出力矩250Nm | 輸出力矩600Nm | 輸出力矩600Nm | 輸出力矩1000Nm | |||
輸入輸出4-20mA | 輸入輸出4-20mA | 輸入輸出4-20mA | 輸入輸出4-20mA | 輸入輸出4-20mA | |||
全程時間30S | 全程時間30S | 全程時間30S | 全程時間30S | 全程時間30S | |||
電源電壓220V50HZ | 電源電壓220V50HZ | 電源電壓220V50HZ | 電源電壓220V50HZ | 電源電壓220V50HZ | 或根據要求 | ||


