連續式均化庫

一、 概述
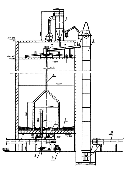
連續式均化庫是生料從庫頂連續進料,經過充氣攪拌的同時連續出料,該庫在中心位置設一個圓柱形混合室,以降低庫內卸料壓力,消除漏斗流,在混合室周圍6-12卸料孔,在混合室與庫壁之間有6-12個充氣區,卸料時輪流向中心室進料,進入混合室的物料因混合室連續充氣而進一步混合,使合格的生料從高位溢流管卸出,多余氣體則由排氣管排至外環區,并抽至收塵器凈化,但要求生料制備系統連續穩定可靠,連續式均化庫具有投資省,電耗低,工藝布置靈活,結構緊湊,操作簡單等特點。其均化值為5-9,電耗0.1-0.2kwh/t。
二、連續式均化庫示意圖


二、 Φ
|
序號 |
名稱及規格 |
單位 |
數量 |
備注 |
|
1 |
氣箱式脈沖收塵器PPCS32-4 風機:9-26 No 8D星形卸灰閥:300×300 |
套 |
1 |
|
|
2 |
庫頂進料系統 |
套 |
1 |
|
|
3 |
提升機TGD400×38000 輸送能力: 減速機ZLY22-20 電動機Y225S-4 37KW |
臺 |
1 |
|
|
4 |
中心室排氣管 |
只 |
1 |
|
|
5 |
卸料裝置B400/315 |
套 |
2 |
|
|
6 |
庫內充氣箱及管路系統 |
套 |
1 |
|
|
7 |
FU鏈式輸送機FU400×L輸送能力 |
只 |
1 |
L由工藝定 |
|
8 |
四八嘴空氣分配閥Φ |
套 |
1 |
|
|
9 |
羅茨風機(均化用)ARD-145 風量 |
臺 |
1 |
|
|
10 |
FU鏈式輸送機FU400×L 輸送能力 |
只 |
1 |
L由工藝定 |
您可能會對以下產品感興趣
產品好不好 用我們的業績證明
奧普核心合作伙伴
企業規模怎么樣 用我們的資質說明
生產能力怎么樣 用我們的設備和團隊表明
新聞動態
- 側式懸臂堆料機的構造及原理
- 什么是 熟料散裝機,有哪三大性能特點
- 什么是 氣箱脈沖布袋除塵器,安裝注意事項概述
- 橋式刮板取料機的特點及操作注意事項
- 什么是圓盤給料機,有哪些優勢特點
- 斗式提升機的六大特點概述
- 操作連續式均化庫的四大注意事項
- 移動式堆料機三大優勢特點及使用步驟
- 關于網站內容違禁詞、極限詞失效說明
- 斗式提升機的工作過程分為哪三個階段
- 操作連續式均化庫的四大注意事項
- 連續式均化庫的使用方法,你知道多少呢?
- 生料均化庫在運行中需要定期檢查哪些項目,不看后悔!
- 影響生料均化庫均化效果的常見因素,看完就明白了!
- 均化庫是新型干法水泥生產工藝的重要設施之一
- 連續式均化庫具有哪些優勢呢
- 談談星型卸料裝置的性能優勢及特點
- 均化庫專用的流量閥有哪些特點呢
- 談談關于涂裝設備的未來發展趨勢如何
- 庫底卸料裝置的密封結構可分為軟性密封和剛性密封兩種形式


