PB-Ⅱ系列平板閘門

本系列平板閘門是粉料、晶粒料、小顆粒料的流量輸送控制的主要設備。廣泛適用于冶金、礦山、建材、糧食、化工等行業。該閘門配備電動、氣動、電液動推桿作為驅動裝置,是控制流量大小,切斷迅速的理想設備。
結構特點
該產品具有結構簡單,操作自如,密封性能優良,局部阻力損失小,切斷快,維護保養方便,不易變形等特點。
性能參數
公稱壓力 | 介質流速 | 適用溫度 | 適用介質 | |
0.05MPa | ≤25m/s | ≤350℃ | ≤500℃ | 空氣、粉塵氣體、固體粉料、晶體料 |
工作原理
平板閘門主要由執行機構、閥體、插板、密封裝置、行程開關等部件組成。運行時輸出指令(電源或氣源)給執行機構,由執行機構帶動插板向外抽出,達到工況需要位置,撞動行程開關停
止,由行程開關反饋信號(開關信號)給控制室。反之則關閉插板閥(向內推進)。
傳動裝置參數
規格 | 200~450 | 500~630 | 700~900 | 1000~140 | |
電動推桿 | DTⅠA63-M P:0.09KW | DTⅡA100-M P:0.25KW | DTⅡA250-M P:0.37KW | DTⅡA500-M P:0.75KW | |
氣動推桿 | 10A-5TC50B | 10A-5TC63B | 10A-5TC80B | 10A-5TC100B | |
電液推桿 | DYT100 P:0.37KW | DYT300 P:0.37KW | DYT500 P:0.55KW | ||
| |||||

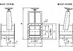
PB-Ⅱ系列外形連接尺寸
A×A | B×B | C×C | b | H | n-d | L1 | L2 | L3 |
200×200 | 245×245 | 280×280 | 4 | 250 | 8-Φ10 | 960 | 1270 | 1320 |
250×250 | 305×305 | 350×350 | 4 | 250 | 12-Φ10 | 1170 | 1480 | 1530 |
300×300 | 355×355 | 400×400 | 4 | 250 | 12-Φ10 | 1320 | 1630 | 1680 |
350×350 | 405×405 | 450×450 | 4 | 250 | 12-Φ12 | 1470 | 1780 | 1830 |
400×400 | 455×455 | 500×500 | 4 | 250 | 16-Φ12 | 1620 | 1930 | 1980 |
450×450 | 505×505 | 550×550 | 4 | 250 | 16-Φ12 | 1770 | 2080 | 2130 |
500×500 | 555×555 | 600×600 | 4 | 250 | 20-Φ14 | 1930 | 2220 | 2280 |
560×560 | 615×615 | 660×660 | 4 | 250 | 20-Φ14 | 2110 | 2400 | 2460 |
600×600 | 655×655 | 700×700 | 6 | 350 | 20-Φ14 | 2230 | 2520 | 2580 |
630×630 | 685×685 | 730×730 | 6 | 350 | 20-Φ14 | 2320 | 2610 | 2670 |
700×700 | 755×755 | 800×800 | 6 | 350 | 20-Φ14 | 2550 | 2820 | 2880 |
750×750 | 805×805 | 850×850 | 6 | 350 | 20-Φ14 | 2700 | 2970 | 3030 |
800×800 | 855×855 | 900×900 | 6 | 350 | 24-Φ14 | 2850 | 3120 | 3180 |
850×850 | 905×905 | 950×950 | 6 | 350 | 24-Φ14 | 3000 | 3270 | 3330 |
900×900 | 955×955 | 1000×1000 | 6 | 350 | 24-Φ14 | 3150 | 3420 | 3480 |
1000×1000 | 1070×1070 | 1130×1130 | 6 | 450 | 28-Φ18 | 3540 | 3940 | 3880 |
1100×1100 | 1170×1170 | 1230×1230 | 6 | 450 | 28-Φ18 | 3840 | 4240 | 4180 |
1200×1200 | 1270×1270 | 1330×1330 | 6 | 450 | 28-Φ18 | 4140 | 4540 | 4480 |
1300×1300 | 1370×1370 | 1430×1430 | 6 | 450 | 32-Φ18 | 4440 | 4840 | 4780 |
1400×1400 | 1470×1470 | 1530×1530 | 6 | 450 | 36-Φ18 | 4740 | 5140 | 5080 |


