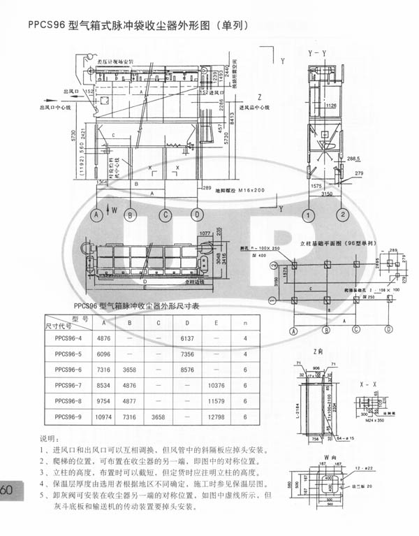
PPCS96型氣箱式脈沖袋收塵器(單列)

PPCS96型氣箱式脈沖袋收塵器技術性能表
|
型號 |
PPCS96 |
PPCS96 |
PPCS96 |
PPCS96 |
PPCS96 |
PPCS96 |
PPCS96 |
PPCS96 |
PPCS96 |
PPCS96 |
PPCS96 |
PPCS96 |
|
|
技術參數 |
-4 |
-5 |
-6 |
-7 |
-8 |
-9 |
-2X5 |
-2X6 |
-2X7 |
-2X8 |
-2X9 |
-2X10 |
|
|
處理風量m3/h |
26800 |
33400 |
40100 |
46800 |
53510 |
60100 |
66900 |
80700 |
94100 |
107600 |
121000 |
134500 |
|
|
過濾風速m/min |
1.2-2.0(根據不同的揚塵點選取不同的凈過濾風速參見表1) |
||||||||||||
|
總過濾面積(m2) |
372 |
465 |
557 |
650 |
744 |
836 |
929 |
1121 |
1308 |
1494 |
1681 |
1868 |
|
|
凈過濾面積(m2) |
279 |
372 |
465 |
557 |
657 |
744 |
836 |
1028 |
1215 |
1401 |
1588 |
1775 |
|
|
收塵器室數(個) |
4 |
5 |
6 |
7 |
8 |
9 |
10 |
12 |
14 |
16 |
18 |
20 |
|
|
濾袋總數(個) |
384 |
480 |
576 |
672 |
768 |
864 |
960 |
1152 |
1344 |
1536 |
1728 |
1920 |
|
|
收塵器阻力(Pa) |
1470-1770 |
||||||||||||
|
進口氣體含塵濃度(g/m2標) |
< 1300 |
||||||||||||
|
出口氣體含塵濃度(g/m2標) |
< 0.1 |
||||||||||||
|
收塵器氣承受負壓(Pa) |
< 5000 |
||||||||||||
|
清灰 |
壓力(Pa) |
(5-7)X105 |
|||||||||||
|
壓縮空氣 |
耗氣量 |
1.2 |
1.5 |
1.8 |
2.1 |
2.4 |
2.7 |
3 |
3.4 |
4.2 |
4.8 |
5.4 |
6 |
|
|
(m3/min) |
||||||||||||
|
脈沖閥 |
數量(個) |
4 |
5 |
6 |
7 |
8 |
9 |
10 |
12 |
14 |
16 |
18 |
20 |
|
(帶電磁閥) |
規格(英寸) |
2.5" |
|||||||||||
|
提升閥 |
數量(個) |
4 |
5 |
6 |
7 |
8 |
9 |
10 |
12 |
14 |
16 |
18 |
20 |
|
(帶汽缸) |
規格(mm) |
提升閥直徑Ø725 汽缸直徑Ø100 |
|||||||||||
|
剛性葉輪給料機 |
下料口400X400mm 轉速22.5r/min |
下料口350X350mm 轉速24.63r/min |
|||||||||||
|
減速電機功率1.5KW 產量40m3/h |
產量30m3/h 功率1.5KW 2臺 |
||||||||||||
|
螺旋輸送機 |
規格 |
Ø400mm 產量38m3/h |
Ø300mm 2臺 每臺產量2130m3/h |
||||||||||
|
減速電機 |
型號XWD5.5-7-1/59 功率5.5KW |
型號XWD2.2-5-43 功率2.2KW |
|||||||||||
|
空氣輸送斜槽 |
如進口氣體含塵濃度大于700g/m3標,應選用輸送斜槽或較大規格螺旋輸送機的收塵器 |
||||||||||||
|
清灰程序控制器 |
輸入和輸出電壓均為220V,控制器由制造廠配套供應,詳細資料參看控制器的說明書 |
||||||||||||
|
濾袋規格和材質 |
直徑X長度Ø130X2450mm,滌綸針刺氈重量450g/m2,使用溫度120℃ |
||||||||||||
|
保溫層面積(m2) |
110 |
120 |
130 |
140 |
150 |
160 |
175 |
210 |
245 |
280 |
315 |
350 |
|
|
設備總量 |
8710 |
10100 |
12400 |
14100 |
15700 |
17700 |
21000 |
25200 |
29400 |
33600 |
37800 |
42000 |
|
|
(約值,不包括保溫層) |
|||||||||||||



