安全閥的的安全作用
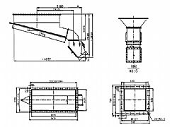
鎖風裝置主要用于水泥廠原料磨卸料鎖風。一種固體粉狀物料排料鎖風密封裝置。鎖風裝置的垂直固定筒形機殼內安裝有隨主軸旋轉的螺旋葉片,螺旋葉片長度比筒形機殼進口與出口間的距離短,進入筒體下部進口的粉狀物料在旋轉螺旋葉片的推動下提升至上部出口排出,固定筒體和旋轉螺旋葉片間的空間被粉狀物料填充而起到密封鎖風作用。鎖風裝置適合收塵設備等粉狀物料排出口處的鎖風密封。
安全閥是鍋爐、壓力容器和其他受壓力設備上重要的安全附件。其動作可靠性和性能好壞直接關系到設備和人身的安全,并與節能和環境保護緊密相關。安全閥是根據壓力系統的工作壓力自動啟閉,一般安裝于封閉系統的設備或管路上保護系統安全。當設備或管道內壓力超過安全閥設定壓力時,自動開啟泄壓,保證設備和管道內介質壓力在設定壓力之下,保護設備和管道正常工作,防止發生意外,減少損失。安全閥在系統中起安全保護作用。當系統壓力超過規定值時,安全閥打開,將系統中的一部分氣體/流體排入大氣/管道外,使系統壓力不超過允許值,從而保證系統不因壓力過高而發生事故。
鎖風裝置主要用于水泥廠原料磨卸料鎖風。一種固體粉狀物料排料鎖風密封裝置。鎖風裝置的垂直固定筒形機殼內安裝有隨主軸旋轉的螺旋葉片,螺旋葉片長度比筒形機殼進口與出口間的距離短,進入筒體下部進口的粉狀物料在旋轉螺旋葉片的推動下提升至上部出口排出,固定筒體和旋轉螺旋葉片間的空間被粉狀物料填充而起到密封鎖風作用。鎖風裝置適合收塵設備等粉狀物料排出口處的鎖風密封。
安全閥是鍋爐、壓力容器和其他受壓力設備上重要的安全附件。其動作可靠性和性能好壞直接關系到設備和人身的安全,并與節能和環境保護緊密相關。安全閥是根據壓力系統的工作壓力自動啟閉,一般安裝于封閉系統的設備或管路上保護系統安全。當設備或管道內壓力超過安全閥設定壓力時,自動開啟泄壓,保證設備和管道內介質壓力在設定壓力之下,保護設備和管道正常工作,防止發生意外,減少損失。安全閥在系統中起安全保護作用。當系統壓力超過規定值時,安全閥打開,將系統中的一部分氣體/流體排入大氣/管道外,使系統壓力不超過允許值,從而保證系統不因壓力過高而發生事故。

安全閥AQF-I
安全閥,AQF-I型安全閥
鎖風裝置
